ค้นหาบ้านมือสองธอส.
ลองเปลี่ยนมาใช้ผ่านแอปดูสิ ใช้ง่าย รวดเร็ว โหลดเลย!
รายการถูกใจล่าสุด
แสดง: 0 รายการ

฿ 1,150,000

รหัสทรัพย์ 1414106161
1414106161
฿ 1,150,000
ประเภททรัพย์
ทาวน์เฮ้าส์
โครงการ
พระปิ่น โครงการ 11(เฟส 2)
19.5 ตร.ว.
2 ชั้น

ที่ตั้ง

เลขที่โฉนด/นส 3ก.
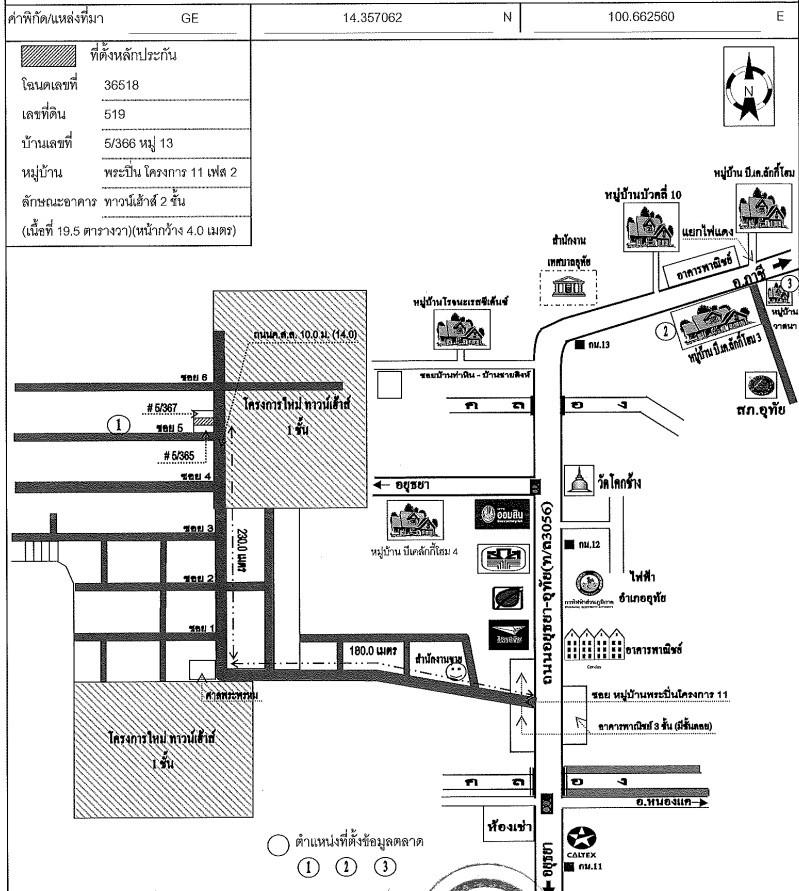
36518
เลขที่
5/366
โครงการ
พระปิ่น โครงการ 11(เฟส 2)
ซอย
5
ถนน
อยุธยา-อุทัย(ทล.3056
แขวง/ตำบล
อุทัย
เขต/อำเภอ
อุทัย
จังหวัด
พระนครศรีอยุธยา

รายละเอียดเพิ่มเติม

ในงาน งานประมูลบ้านมือสองธอส.ครั้งที่ 4/2568

ราคาพิเศษเฉพาะงานประมูลขายบ้านมือสอง ธอส. ประจำปี ครั้งที่ 4/2568 จัดขึ้นในวันเสาร์ที่ 13 ธันวาคม 2568 เริ่มทำการประมูลตั้งแต่เวลา 10.00 - 16.00 น. ณ สาขาที่ตั้งทรัพย์ ประมูลพร้อมกันทั่วประเทศ พิเศษ!!! สามารถใช้ผลิตภัณฑ์สินเชื่อ NPA Special Event ปี 2568 อัตราดอกเบี้ย 0% นาน 2 ปี * เงื่อนไขเป็นไปตามที่ธนาคารกำหนด

  •   ณ ฝ่ายพิธีการสินเชื่อ อาคาร 2 ชั้น 1 ธนาคารอาคารสงเคราะห์ สำนักงานใหญ่ และสาขาที่ทำการภูมิภาค
  •   13 ธ.ค. 2568 วันเดียวเท่านั้น
  •   08:00-16:00 น.

ทำเลที่ตั้ง

คลิ๊กดูรูปภาพแผนที่

ข้อมูลติดต่อ

ธนาคารอาคารสงเคราะห์
  • ฝ่ายบริหารหนี้ภูมิภาค ติดต่อ 0-2645-9000 กด 5 วันทำการ เวลา 8.30 น. - 16.30 น. (คุณรัชพิชญ์ พลมาตย์ โทร 08-5839-6371 สาขาถนนโรจนะ)
เบอร์ติดต่อธนาคาร
  • 0-2645-9000
  • โทร. 0-2645-9000
  • 08-5839-6371
  • โทร. 08-5839-6371
  • ติดต่อธนาคาร