ค้นหาบ้านมือสองธอส.
ลองเปลี่ยนมาใช้ผ่านแอปดูสิ ใช้ง่าย รวดเร็ว โหลดเลย!
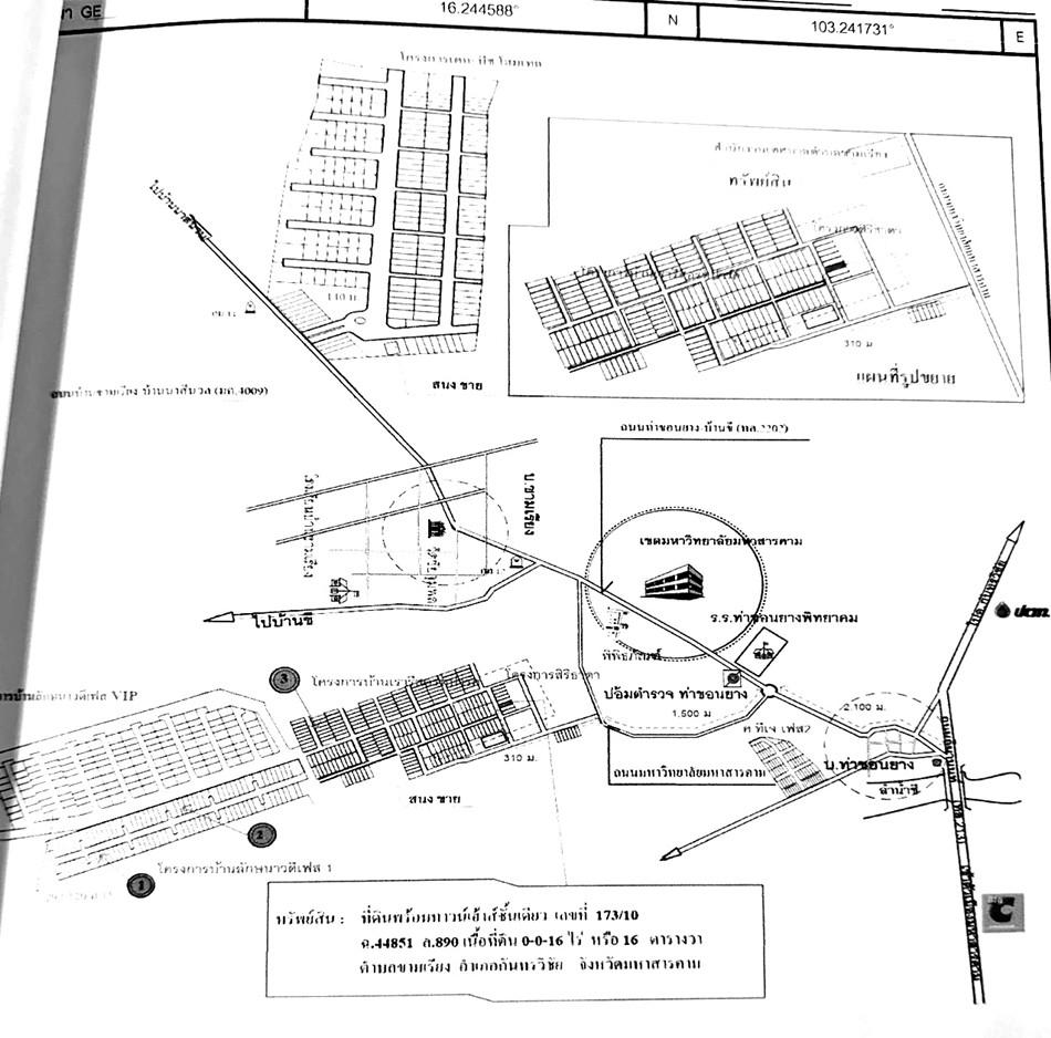
  • เลขที่โฉนด/นส3.ก : -
  • รหัสทรัพย์: 4404100391
  • ลำดับทรัพย์ที่: -
  • ประเภททรัพย์: ทาวน์เฮ้าส์
  • โครงการ/หมู่บ้าน: -
  • ต.ขามเรียง อ.กันทรวิชัย จ.มหาสารคาม
  • 16 ตร.ว.
  • 1 ชั้น

รายละเอียดทรัพย์

  • ประเภททรัพย์ ทาวน์เฮ้าส์
  • เนื้อที่ 16 ตร.ว.
  • จำนวนชั้น 1 ชั้น
  • ซอย สนง.เทศบาล ต.ขามเรียง
  • ตำบล/แขวง ขามเรียง
  • จังหวัด มหาสารคาม
  • โครงการ/หมู่บ้าน -
  • พื้นที่ใช้สอย
    -
  • ที่ตั้งทรัพย์ 173/10
  • ถนน ท่าขอนยาง-บ้านขี
  • อำเภอ/เขต กันทรวิชัย
  •  

รายละเอียดเพิ่มเติม

ในงาน โครงการบ้านล้านหลัง ระยะที่ 3

โครงการบ้านล้านหลัง ระยะที่ 3 สามารถใช้สินเชื่ออัตราดอกเบี้ยคงที่ 5 ปีแรก 3.00% ต่อปี เพียงดาวน์โหลด GHB ALL GEN Application และรับรหัสเข้าร่วมโครงการ ระยะเวลาโครงการตั้งแต่วันที่ 27 กุมภาพันธ์ 2566 - 30 ธันวาคม 2568 หรือจนกว่าจะเต็มกรอบวงเงินในโครงการ (ราคาโปรโมชั่นนี้สามารถซื้อและทำสัญญาฯ ได้ถึงวันที่ 18 ก.พ. 69) *เงื่อนไขเป็นไปตามที่ธนาคารกำหนด

  •   ธนาคารอาคารสงเคราะห์ สำนักงานใหญ่ และที่ทำการสาขาทั่วประเทศ
  •   27 ก.พ. 2566 - 30 ธ.ค. 2568
  •   08:30-16:30 น.

ถ้าจะซื้อทรัพย์นี้ จะต้องผ่อนเดือนละเท่าไหร่

ราคาทรัพย์ 865,000 บาท

เงินจอง บาท
เงินประกันการเข้าอยู่ 1.5% บาท
เงินดาวน์
จำนวนเงินดาวน์ บาท
เงินดาวน์งวดที่1* บาท
เงินดาวน์งวดที่2
*
บาท

ชำระวันทำสัญญา เงินจอง + เงินประกันการเข้าอยู่ 1.5% + เงินดาวน์งวดที่ 1 บาท

จำนวนเงินขอสินเชื่อ บาท
ผ่อนชำระ ปี
อัตราดอกเบี้ย ปี
จำนวนเงินผ่อนชำระ* บาท/เดือน

หมายเหตุ
  • ยอดการผ่อนชำระเป็นเพียงการประมาณการในเบื้องต้น ส่วนการอนุมัติสินเชื่อสงวนสิทธิ์ เป็นไปตามหลักเกณฑ์ของธนาคารและคุณสมบัติของผู้กู้ และอัตราดอกเบี้ยอ้างอิงจากดอกเบี้ยเงินกู้ร้อยละ 6.245
  • เงินดาวน์ 10%
    87,000 บาท
  • ผ่อนดาวน์ (ต่องวด)
    7,200 บาท

  • ยอดจัดสินเชื่อ
    778,000 บาท
  • อัตราผ่อนชำระ (ต่อเดือน)
    4,800 บาท
หมายเหตุ
  • ยอดการผ่อนชำระเป็นเพียงการประมาณการในเบื้องต้น ส่วนการอนุมัติสินเชื่อสงวนสิทธิ์ เป็นไปตามหลักเกณฑ์ของธนาคารและคุณสมบัติของผู้กู้ และอัตราดอกเบี้ยอ้างอิงจากดอกเบี้ยเงินกู้ร้อยละ 6.245

ทำเลที่ตั้ง

คลิ๊กดูรูปภาพแผนที่

ข้อมูลติดต่อ

ธนาคารอาคารสงเคราะห์
  • ฝ่ายบริหารหนี้ภูมิภาค ติดต่อ 0-2645-9000 กด 5 วันทำการ เวลา 8.30 น. - 16.30 น. (คุณกิ่งแก้ว โลเกต โทร 09-5375-8637 : 08-5839-5780 สาขามหาสารคาม)
เบอร์ติดต่อธนาคาร
  • 0-2645-9000
  • โทร. 0-2645-9000
  • 09-5375-8637
  • โทร. 09-5375-8637
  • 08-5839-5780
  • โทร. 08-5839-5780
  • ติดต่อธนาคาร

Memorial Banner