ค้นหาบ้านมือสองธอส.
ลองเปลี่ยนมาใช้ผ่านแอปดูสิ ใช้ง่าย รวดเร็ว โหลดเลย!
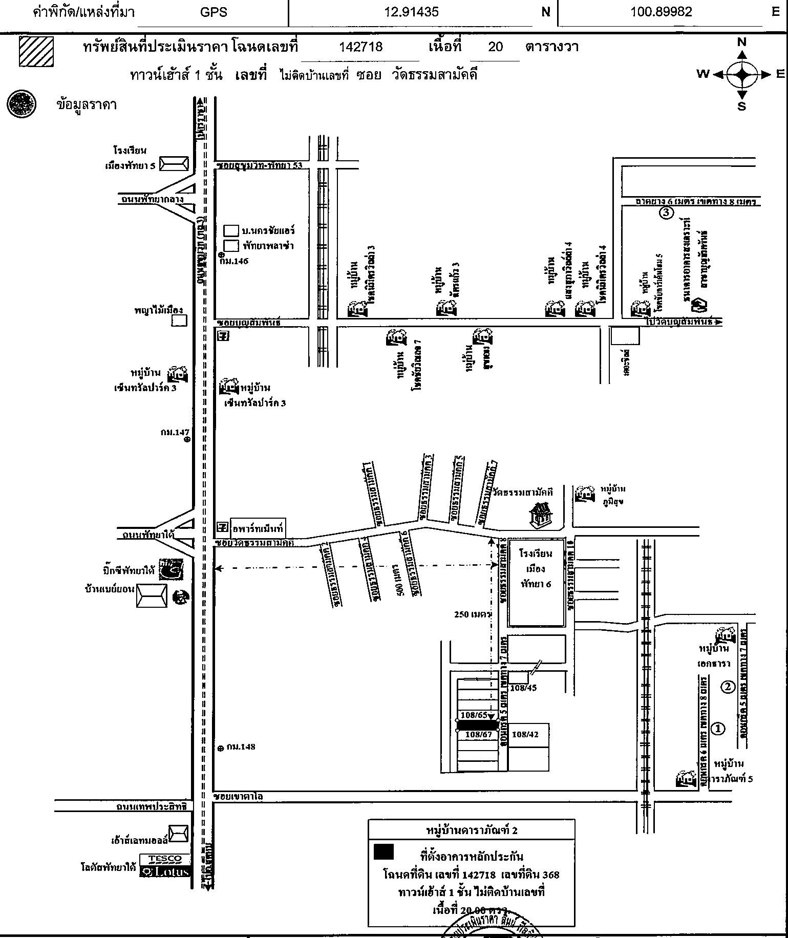
  • เลขที่โฉนด/นส3.ก : -
  • รหัสทรัพย์: 2004118311
  • ประเภททรัพย์: ทาวน์เฮ้าส์
  • โครงการ/หมู่บ้าน: ภูมิสุขวิลล่า
  • ต.หนองปรือ อ.บางละมุง จ.ชลบุรี
  • 20 ตร.ว.
  • 1 ชั้น

รายละเอียดทรัพย์

  • ประเภททรัพย์ ทาวน์เฮ้าส์
  • เนื้อที่ 20 ตร.ว.
  • จำนวนชั้น 1 ชั้น
  • ซอย วัดธรรมสามัคคี
  • ตำบล/แขวง หนองปรือ
  • จังหวัด ชลบุรี
  • โครงการ/หมู่บ้าน ภูมิสุขวิลล่า
  • พื้นที่ใช้สอย
    -
  • ที่ตั้งทรัพย์ 108/66
  • ถนน สุขุมวิท(ทล.3)
  • อำเภอ/เขต บางละมุง
  •  

รายละเอียดเพิ่มเติม

ซื้อทรัพย์แล้วยื่นกู้ได้เลย โดยใช้สินเชื่อสำหรับซื้อทรัพย์ NPA ของธนาคาร อัตราดอกเบี้ย 0% นาน 12 เดือน * เงื่อนไขเป็นไปตามที่ธนาคารกำหนด

ถ้าจะซื้อทรัพย์นี้ จะต้องผ่อนเดือนละเท่าไหร่

ราคาทรัพย์ 1,500,000 บาท

เงินจอง บาท
เงินประกันการเข้าอยู่ 1.5% บาท
เงินดาวน์
จำนวนเงินดาวน์ บาท
เงินดาวน์งวดที่1* บาท
เงินดาวน์งวดที่2
*
บาท

ชำระวันทำสัญญา เงินจอง + เงินประกันการเข้าอยู่ 1.5% + เงินดาวน์งวดที่ 1 บาท

จำนวนเงินขอสินเชื่อ บาท
ผ่อนชำระ ปี
อัตราดอกเบี้ย ปี
จำนวนเงินผ่อนชำระ* บาท/เดือน

หมายเหตุ
  • ยอดการผ่อนชำระเป็นเพียงการประมาณการในเบื้องต้น ส่วนการอนุมัติสินเชื่อสงวนสิทธิ์ เป็นไปตามหลักเกณฑ์ของธนาคารและคุณสมบัติของผู้กู้ และอัตราดอกเบี้ยอ้างอิงจากดอกเบี้ยเงินกู้ร้อยละ 6.245
  • เงินดาวน์ 10%
    150,000 บาท
  • ผ่อนดาวน์ (ต่องวด)
    12,500 บาท

  • ยอดจัดสินเชื่อ
    1,350,000 บาท
  • อัตราผ่อนชำระ (ต่อเดือน)
    8,400 บาท
หมายเหตุ
  • ยอดการผ่อนชำระเป็นเพียงการประมาณการในเบื้องต้น ส่วนการอนุมัติสินเชื่อสงวนสิทธิ์ เป็นไปตามหลักเกณฑ์ของธนาคารและคุณสมบัติของผู้กู้ และอัตราดอกเบี้ยอ้างอิงจากดอกเบี้ยเงินกู้ร้อยละ 6.245

ข้อมูลติดต่อ

ธนาคารอาคารสงเคราะห์
  • ฝ่ายบริหารหนี้ภูมิภาค ติดต่อ 0-2645-9000 กด 5 วันทำการ เวลา 8.30 น. - 16.30 น. (คุณณิชารีย์ ตันอู่สิน โทร 09-5375-8643 สาขาสัตหีบ)
เบอร์ติดต่อธนาคาร
  • 0-2645-9000
  • โทร. 0-2645-9000
  • 09-5375-8643
  • โทร. 09-5375-8643
  • ติดต่อธนาคาร

Memorial Banner