ค้นหาบ้านมือสองธอส.
ลองเปลี่ยนมาใช้ผ่านแอปดูสิ ใช้ง่าย รวดเร็ว โหลดเลย!
  • เลขที่โฉนด/นส3.ก : -
  • รหัสทรัพย์: 1302114771
  • ประเภททรัพย์: คอนโด
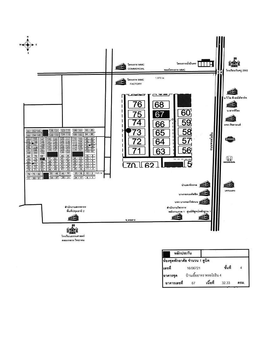
  • โครงการ/หมู่บ้าน: บ้านเอื้ออาทรพหลโยธิน 4
  • ต.คลองหนึ่ง อ.คลองหลวง จ.ปทุมธานี
  • 32.33 ตร.ม.
  • ชั้นที่ 3 จาก 5 ชั้น

รายละเอียดทรัพย์

  • ประเภททรัพย์ คอนโด
  • เนื้อที่ -
  • จำนวนชั้น ชั้นที่ 3 จาก 5 ชั้น
  • ซอย บ้านเอื้ออาทรพหลโยธิน44
  • ตำบล/แขวง คลองหนึ่ง
  • จังหวัด ปทุมธานี
  • โครงการ/หมู่บ้าน บ้านเอื้ออาทรพหลโยธิน 4
  • พื้นที่ใช้สอย
    32.33 ตร.ม.
  • ที่ตั้งทรัพย์ 16/06721
  • ถนน พหลโยธิน
  • อำเภอ/เขต คลองหลวง
  •  

รายละเอียดเพิ่มเติม

ซื้อทรัพย์แล้วยื่นกู้ได้เลย โดยใช้สินเชื่อสำหรับซื้อทรัพย์ NPA ของธนาคาร อัตราดอกเบี้ย 0% นาน 18 เดือน *เงื่อนไขเป็นไปตามที่ธนาคารกำหนด

ถ้าจะซื้อทรัพย์นี้ จะต้องผ่อนเดือนละเท่าไหร่

ราคาทรัพย์ 470,000 บาท

เงินจอง บาท
เงินประกันการเข้าอยู่ 1.5% บาท
เงินดาวน์
จำนวนเงินดาวน์ บาท
เงินดาวน์งวดที่1* บาท
เงินดาวน์งวดที่2
*
บาท

ชำระวันทำสัญญา เงินจอง + เงินประกันการเข้าอยู่ 1.5% + เงินดาวน์งวดที่ 1 บาท

จำนวนเงินขอสินเชื่อ บาท
ผ่อนชำระ ปี
อัตราดอกเบี้ย ปี
จำนวนเงินผ่อนชำระ* บาท/เดือน

หมายเหตุ
  • ยอดการผ่อนชำระเป็นเพียงการประมาณการในเบื้องต้น ส่วนการอนุมัติสินเชื่อสงวนสิทธิ์ เป็นไปตามหลักเกณฑ์ของธนาคารและคุณสมบัติของผู้กู้ และอัตราดอกเบี้ยอ้างอิงจากดอกเบี้ยเงินกู้ร้อยละ 6.245
  • เงินดาวน์ 10%
    47,000 บาท
  • ผ่อนดาวน์ (ต่องวด)
    3,900 บาท

  • ยอดจัดสินเชื่อ
    423,000 บาท
  • อัตราผ่อนชำระ (ต่อเดือน)
    2,700 บาท
หมายเหตุ
  • ยอดการผ่อนชำระเป็นเพียงการประมาณการในเบื้องต้น ส่วนการอนุมัติสินเชื่อสงวนสิทธิ์ เป็นไปตามหลักเกณฑ์ของธนาคารและคุณสมบัติของผู้กู้ และอัตราดอกเบี้ยอ้างอิงจากดอกเบี้ยเงินกู้ร้อยละ 6.245

ทำเลที่ตั้ง

คลิ๊กดูรูปภาพแผนที่

ข้อมูลติดต่อ

ธนาคารอาคารสงเคราะห์
  • ฝ่ายบริหาร NPA โทร 0-2645-9000 กด 5 วันและเวลาทำการ จันทร์ - ศุกร์ 8.30น. - 16.30น.(คุณลัทธพล พันธ์แดงชิณภา 09-9123-1307 วันเสาร์-อาทิตย์)
เบอร์ติดต่อธนาคาร
  • 0-2645-9000
  • โทร. 0-2645-9000
  • 09-9123-1307
  • โทร. 09-9123-1307
  • ติดต่อธนาคาร