ค้นหาบ้านมือสองธอส.
ลองเปลี่ยนมาใช้ผ่านแอปดูสิ ใช้ง่าย รวดเร็ว โหลดเลย!
  • เลขที่โฉนด/นส3.ก : -
  • รหัสทรัพย์: 1021103551
  • ลำดับทรัพย์ที่: -
  • ประเภททรัพย์: ทาวน์เฮ้าส์
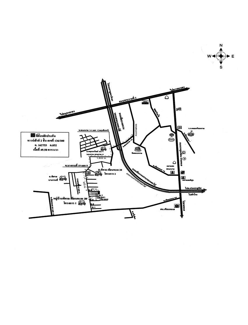
  • โครงการ/หมู่บ้าน: พิศาลเทียนทะเล 20 โครงการ1
  • เขตแสมดำ แขวงบางขุนเทียน จังหวัดกรุงเทพมหานคร
  • 49.5 ตร.ว.
  • 2 ชั้น

รายละเอียดทรัพย์

  • ประเภททรัพย์ ทาวน์เฮ้าส์
  • เนื้อที่ 49.5 ตร.ว.
  • จำนวนชั้น 2 ชั้น
  • ซอย สะแกงาม14
  • ตำบล/แขวง แสมดำ
  • จังหวัด กรุงเทพมหานคร
  • โครงการ/หมู่บ้าน พิศาลเทียนทะเล 20 โครงการ1
  • พื้นที่ใช้สอย
    -
  • ที่ตั้งทรัพย์ 136/380
  • ถนน สะแกงาม
  • อำเภอ/เขต บางขุนเทียน
  •  

รายละเอียดเพิ่มเติม

ในงาน โครงการทรัพย์ตรงใจ

โครงการทรัพย์ตรงใจ ราคาโปรโมชั่นนี้สามารถซื้อและทำสัญญาฯ ได้ถึงวันที่ 24 ม.ค. 69 ซื้อทรัพย์แล้วยื่นกู้ได้เลย โดยใช้สินเชื่อสำหรับซื้อทรัพย์ NPA ของธนาคาร อัตราดอกเบี้ย 0% นาน 24 เดือน *เงื่อนไขเป็นไปตามที่ธนาคารกำหนด

  •   ฝ่ายบริหาร NPA อาคาร 2 ชั้น 2 ธอส.สำนักงานใหญ่ สำหรับทรัพย์ส่วนภูมิภาค ติดต่อได้ ณ สาขาที่ตั้งทรัพย์
  •   วันนี้เป็นต้นไป
  •   08:30-16:30 น.

ถ้าจะซื้อทรัพย์นี้ จะต้องผ่อนเดือนละเท่าไหร่

ราคาทรัพย์ 2,565,000 บาท

เงินจอง บาท
เงินประกันการเข้าอยู่ 1.5% บาท
เงินดาวน์
จำนวนเงินดาวน์ บาท
เงินดาวน์งวดที่1* บาท
เงินดาวน์งวดที่2
*
บาท

ชำระวันทำสัญญา เงินจอง + เงินประกันการเข้าอยู่ 1.5% + เงินดาวน์งวดที่ 1 บาท

จำนวนเงินขอสินเชื่อ บาท
ผ่อนชำระ ปี
อัตราดอกเบี้ย ปี
จำนวนเงินผ่อนชำระ* บาท/เดือน

หมายเหตุ
  • ยอดการผ่อนชำระเป็นเพียงการประมาณการในเบื้องต้น ส่วนการอนุมัติสินเชื่อสงวนสิทธิ์ เป็นไปตามหลักเกณฑ์ของธนาคารและคุณสมบัติของผู้กู้ และอัตราดอกเบี้ยอ้างอิงจากดอกเบี้ยเงินกู้ร้อยละ 6.245
  • เงินดาวน์ 10%
    257,000 บาท
  • ผ่อนดาวน์ (ต่องวด)
    21,400 บาท

  • ยอดจัดสินเชื่อ
    2,308,000 บาท
  • อัตราผ่อนชำระ (ต่อเดือน)
    14,300 บาท
หมายเหตุ
  • ยอดการผ่อนชำระเป็นเพียงการประมาณการในเบื้องต้น ส่วนการอนุมัติสินเชื่อสงวนสิทธิ์ เป็นไปตามหลักเกณฑ์ของธนาคารและคุณสมบัติของผู้กู้ และอัตราดอกเบี้ยอ้างอิงจากดอกเบี้ยเงินกู้ร้อยละ 6.245

ทำเลที่ตั้ง

คลิ๊กดูรูปภาพแผนที่

ข้อมูลติดต่อ

ธนาคารอาคารสงเคราะห์
  • ฝ่ายบริหาร NPA โทร 0-2645-9000 กด 5 วันและเวลาทำการ จันทร์ - ศุกร์ 8.30น. - 16.30น.(คุณธัญญวดี ธัญญวนิชพงษ์ 06-6121-4980 วันเสาร์-อาทิตย์)
เบอร์ติดต่อธนาคาร
  • 0-2645-9000
  • โทร. 0-2645-9000
  • 06-6121-4980
  • โทร. 06-6121-4980
  • ติดต่อธนาคาร