ค้นหาบ้านมือสองธอส.
ลองเปลี่ยนมาใช้ผ่านแอปดูสิ ใช้ง่าย รวดเร็ว โหลดเลย!
  • เลขที่โฉนด/นส3.ก : -
  • รหัสทรัพย์: 1003109811
  • ลำดับทรัพย์ที่: -
  • ประเภททรัพย์: บ้านแฝด
  • โครงการ/หมู่บ้าน: อมรทรัพย์
  • เขตกระทุ่มราย แขวงหนองจอก จังหวัดกรุงเทพมหานคร
  • 23 ตร.ว.
  • 2 ชั้น

รายละเอียดทรัพย์

  • ประเภททรัพย์ บ้านแฝด
  • เนื้อที่ 23 ตร.ว.
  • จำนวนชั้น 2 ชั้น
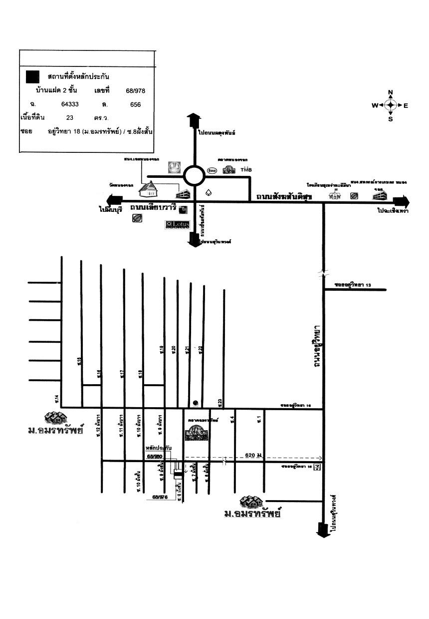
  • ซอย อยู่วิทยา18(มบ.อมรทรัพย์ ซ.8)
  • ตำบล/แขวง กระทุ่มราย
  • จังหวัด กรุงเทพมหานคร
  • โครงการ/หมู่บ้าน อมรทรัพย์
  • พื้นที่ใช้สอย
    -
  • ที่ตั้งทรัพย์ 68/978
  • ถนน อยู่วิทยา
  • อำเภอ/เขต หนองจอก
  •  

รายละเอียดเพิ่มเติม

ในงาน โครงการบ้านล้านหลัง ระยะที่ 3

โครงการบ้านล้านหลัง ระยะที่ 3 สามารถใช้สินเชื่ออัตราดอกเบี้ยคงที่ 5 ปีแรก 3.00% ต่อปี เพียงดาวน์โหลด GHB ALL GEN Application และรับรหัสเข้าร่วมโครงการ ระยะเวลาโครงการตั้งแต่วันที่ 27 กุมภาพันธ์ 2566 - 30 ธันวาคม 2568 หรือจนกว่าจะเต็มกรอบวงเงินในโครงการ (ราคาโปรโมชั่นนี้สามารถซื้อและทำสัญญาฯ ได้ถึงวันที่ 24 ม.ค. 69)*เงื่อนไขเป็นไปตามที่ธนาคารกำหนด

  •   ธนาคารอาคารสงเคราะห์ สำนักงานใหญ่ และที่ทำการสาขาทั่วประเทศ
  •   27 ก.พ. 2566 - 30 ธ.ค. 2568
  •   08:30-16:30 น.

ถ้าจะซื้อทรัพย์นี้ จะต้องผ่อนเดือนละเท่าไหร่

ราคาทรัพย์ 1,000,000 บาท

เงินจอง บาท
เงินประกันการเข้าอยู่ 1.5% บาท
เงินดาวน์
จำนวนเงินดาวน์ บาท
เงินดาวน์งวดที่1* บาท
เงินดาวน์งวดที่2
*
บาท

ชำระวันทำสัญญา เงินจอง + เงินประกันการเข้าอยู่ 1.5% + เงินดาวน์งวดที่ 1 บาท

จำนวนเงินขอสินเชื่อ บาท
ผ่อนชำระ ปี
อัตราดอกเบี้ย ปี
จำนวนเงินผ่อนชำระ* บาท/เดือน

หมายเหตุ
  • ยอดการผ่อนชำระเป็นเพียงการประมาณการในเบื้องต้น ส่วนการอนุมัติสินเชื่อสงวนสิทธิ์ เป็นไปตามหลักเกณฑ์ของธนาคารและคุณสมบัติของผู้กู้ และอัตราดอกเบี้ยอ้างอิงจากดอกเบี้ยเงินกู้ร้อยละ 6.245
  • เงินดาวน์ 10%
    100,000 บาท
  • ผ่อนดาวน์ (ต่องวด)
    8,300 บาท

  • ยอดจัดสินเชื่อ
    900,000 บาท
  • อัตราผ่อนชำระ (ต่อเดือน)
    5,600 บาท
หมายเหตุ
  • ยอดการผ่อนชำระเป็นเพียงการประมาณการในเบื้องต้น ส่วนการอนุมัติสินเชื่อสงวนสิทธิ์ เป็นไปตามหลักเกณฑ์ของธนาคารและคุณสมบัติของผู้กู้ และอัตราดอกเบี้ยอ้างอิงจากดอกเบี้ยเงินกู้ร้อยละ 6.245

ทำเลที่ตั้ง

คลิ๊กดูรูปภาพแผนที่

ข้อมูลติดต่อ

ธนาคารอาคารสงเคราะห์
  • ฝ่ายบริหาร NPA โทร 0-2645-9000 กด 5 วันและเวลาทำการ จันทร์ - ศุกร์ 8.30น. - 16.30น.(คุณธัญญวดี ธัญญวนิชพงษ์ 06-6121-4980 วันเสาร์-อาทิตย์)
เบอร์ติดต่อธนาคาร
  • 0-2645-9000
  • โทร. 0-2645-9000
  • 06-6121-4980
  • โทร. 06-6121-4980
  • ติดต่อธนาคาร